Słubice, Sady

Obiekt na sprzedaż

Opis nieruchomości

BIURO NIERUCHOMOŚCI IDEA poleca


Budynek handlowo-usługowy z parkingiem i częścią magazynową na zapleczu.

Lokalizacja: Sady gm. Słubice

Jeśli szukasz dobrej lokalizacji do prowadzenia działalności - to ta oferta na pewno Cię zainteresuje.

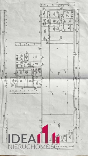
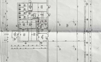
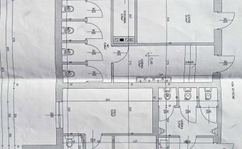
Nieruchomość jest budynkiem wolnostojącym o powierzchni zabudowy ok. 300 m2.



Część handlowa jako sala sprzedaży ma powierzchnię ok 200 mkw.

Dojazd do nieruchomości przez drogę asfaltową. Miejsca parkingowe przy lokalu. 

Budynek posadowiony na działce nr 200/2 o powierzchni 6300  mkw.

Dodatkowo w cenie działka  przylegająca nr 199/2 o powierzchni 9710 m2. Klasa gruntu: RIVb, RV, PsIV.


MEDIA

- prąd
- siła
- woda


Budynek wolnostojący, niepodpiwniczony. Pokrycie dachu blachą. 

Nieruchomość jest idealnym miejscem pod inwestycje i otworzenie własnego biznesu.

Oferta dostępna tylko u nas w biurze.


Zapraszamy na prezentację!

Potrzebujesz kredytu na zakup nieruchomości? Zapraszamy do nas! Bezpłatnie porównamy oferty wielu banków oraz wybierzemy najlepsze rozwiązanie dopasowane do Twoich potrzeb.

Nota prawna

Opis oferty zawarty na stronie internetowej sporządzany jest na podstawie oględzin nieruchomości oraz informacji uzyskanych od właściciela, może podlegać aktualizacji i nie stanowi oferty określonej w art. 66 i następnych K.C.

Szczegóły oferty

Symbol oferty IDA-BS-65
Powierzchnia 300,00 m²
Powierzchnia działki 16 000 m²
Rodzaj obiektu pawilon

Lokalizacja

Kalkulator kredytowy

PLN
%
Wysokość raty

Kalkulator kosztów

PLN
PLN
PLN
PLN
PLN
PLN
%
PLN
Podatek od czynności cywilno-prawnych
Taksa notarialna (opłata notarialna)
VAT od taksy notarialnej (opłaty notarialnej)
Wniosek do WKW
VAT od wniosku do WKW
Prowizja agencji nieruchomości
VAT od prowizji agencji nieruchomości
Wypisy aktu notarialnego - około
RAZEM (cena + opłaty)

Napisz do nas

Proszę wypełnić to pole
Proszę wypełnić to pole
Proszę wypełnić to pole
Proszę wypełnić to pole
Trwa wysyłanie...

Ta strona wykorzystuje pliki cookies w celach statystycznych oraz w celu dostosowania naszych serwisów do indywidualnych potrzeb klientów. Zmiany ustawień dotyczących plików cookie można dokonać w dowolnej chwili modyfikując ustawienia przeglądarki. Korzystanie z tej strony bez zmian ustawień dotyczących cookies oznacza, że będą one zapisane w pamięci urządzenia.

rozumiem